Diese gepflegte 4-Zimmer-Erdgeschosswohnung vereint Komfort und Lebensqualität auf besondere Weise und heißt Sie herzlich willkommen.
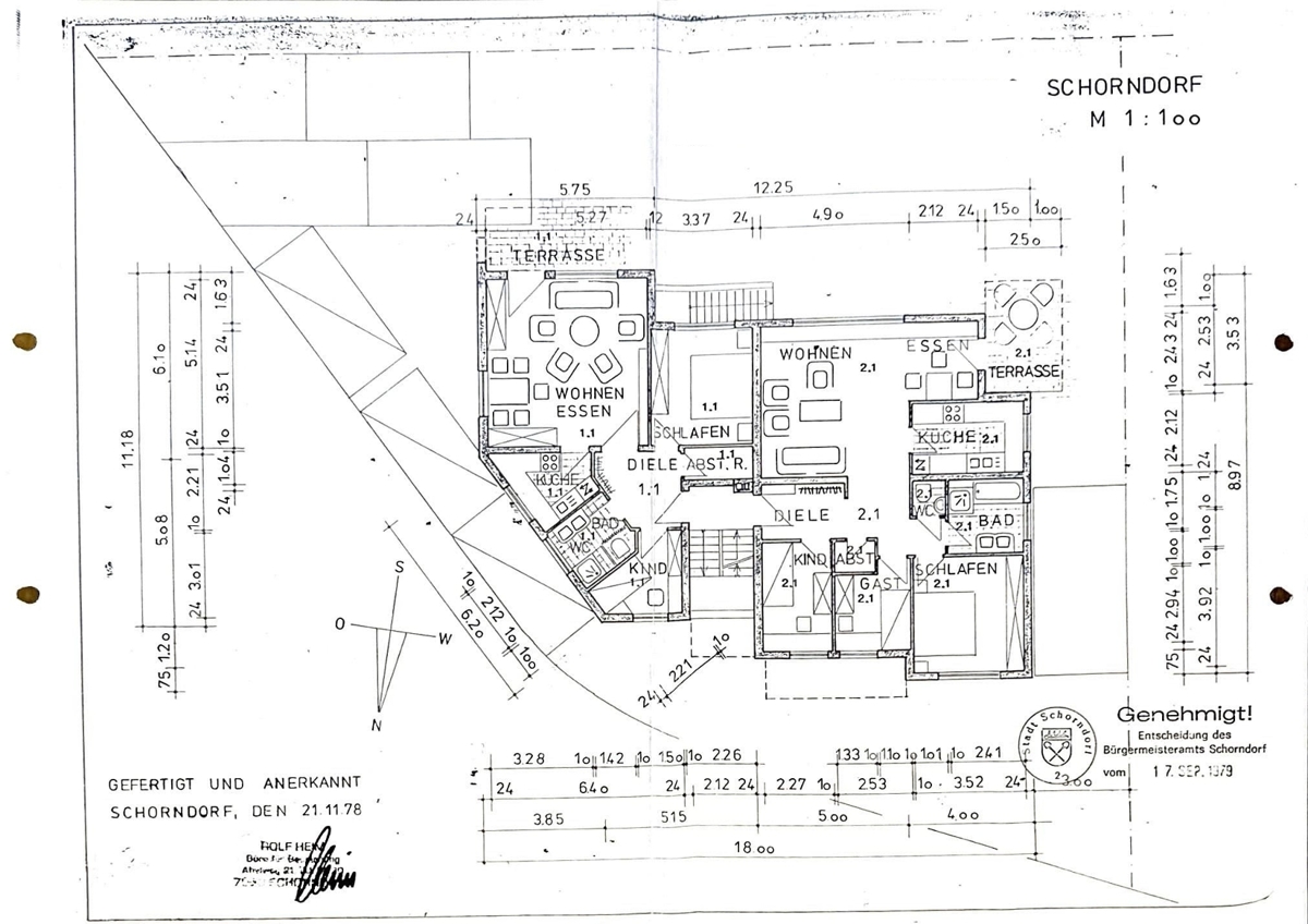
Die Wohnung besticht durch einen durchdachten Grundriss und bietet Ihnen viel Platz zum Entspannen und Genießen.
Beim Betreten der Wohnung gelangen Sie zunächst in eine einladende Diele, die ausreichend Platz für einen persönlichen Empfangsbereich bietet. Der lichtdurchflutete Wohn- und Essbereich bietet dank der großen Fensterfront viel Tageslicht. Von hier aus haben Sie direkten Zugang zur Terrasse und zu Ihrem sonnigen Garten, der sich ideal für gemütliche Stunden im Freien, zum Spielen und für gesellige Grillabende mit Freunden und Familie eignet.
Ihre, an den Essbereich angrenzende Küche ist ansprechend gestaltet und mit einer Einbauküche ausgestattet und lädt zur Zubereitung kulinarischer Köstlichkeiten ein.
Drei gut geschnittene Schlafzimmer sorgen für Rückzugsmöglichkeiten und erholsame Nächte.
Das Tageslichtbadezimmer überzeugt mit seinem zeitlosen, klassischen Design, der bodengleichen Dusche und verfügt über ein Waschbecken und ein WC. Ein zusätzliches Gäste-WC rundet das Angebot ab.
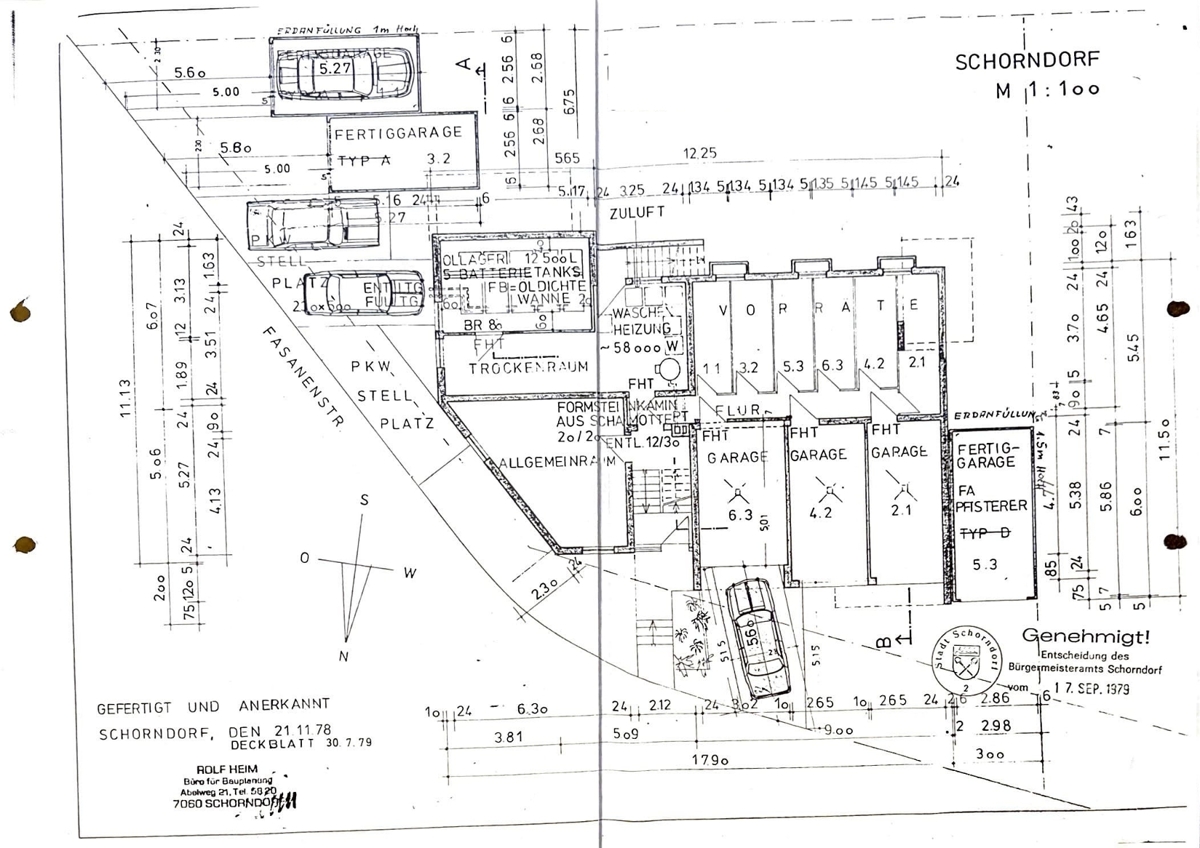
Im Untergeschoss steht Ihnen ein separater Kellerraum zur Verfügung, der zusätzlichen Stauraum bietet. Die zur Wohnung gehörende Garage sorgt dafür, dass Ihr Fahrzeug sicher und bequem untergebracht ist.
Sie sind herzlich eingeladen, nach Hause zu kommen und sich bei einer persönlichen Besichtigung von diesem schönen Angebot begeistern zu lassen.




















