Herzlich willkommen in Ihrem neuen Zuhause.
Über den schönen Laubengang erreichen Sie die Haustür dieser besonderen Immobilie. Bereits beim nach Hause kommen in Ihre sehr gepflegte 4-Zimmer-Maisonettewohnung, die nach dem Haus in Haus-Konzept gebaut wurde, schweift Ihr Blick direkt in den lichtdurchfluteten Wohn- und Essbereich bis hin zu Ihrem sonnenverwöhnten Südbalkon.
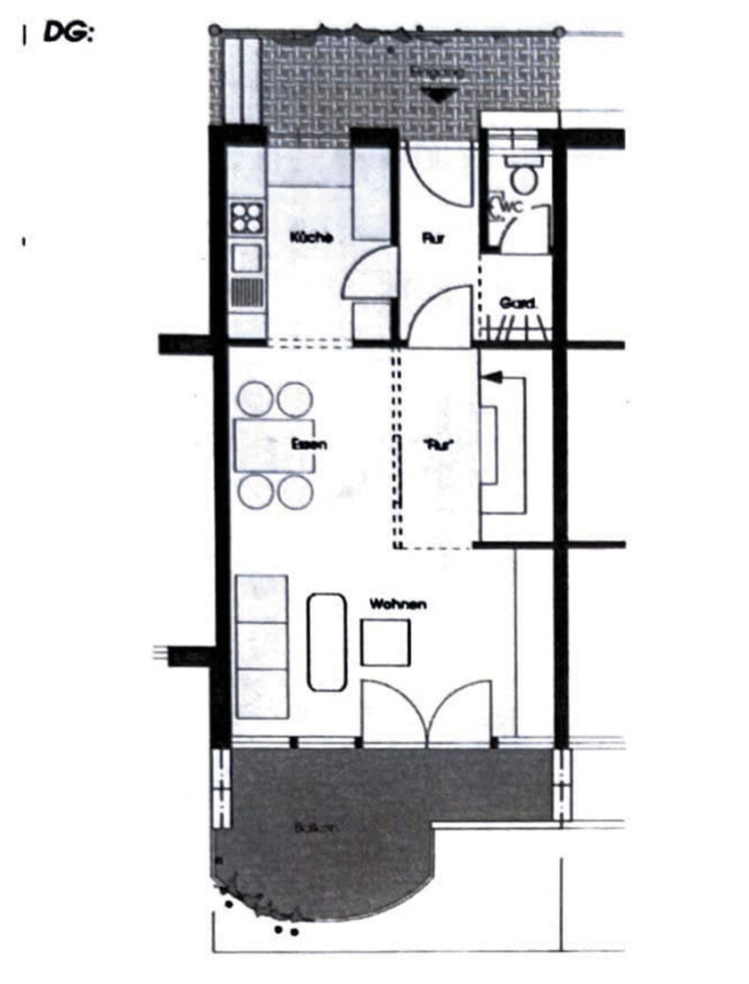
Im Eingangsbereich befindet sich die Diele und das Gäste-WC mit Fenster. Durch eine Glasschiebetür lädt Ihr großzügiger Wohn-, Essbereich mit großer, nach Süden ausgerichteter Fensterfront und Zugang zum Balkon zum Heimkommen ein. Über die Dächer Ihrer Nachbarschaft hinweg bietet Ihr Südbalkon einen wunderbaren Weitblick. Vom Essbereich gelangen Sie in Ihre hochwertig ausgestattete Küche, die ebenfalls über eine Glasschiebetür verfügt.
Über eine gepflegte, helle Holztreppe gelangen Sie in den unteren Bereich, in dem sich 3 helle Zimmer und das großzügige Tageslichtbadezimmer befinden. Durch geringen baulichen Aufwand lässt sich auf dieser Etage ein weiteres Zimmer realisieren.
Insgesamt bietet die Wohnung einen sehr ansprechenden und gleichzeitig praktischen Grundriss sowie viele hochwertige Details, durch die sich das Leben in Ihrem Zuhause überaus angenehm gestaltet.
Im Wohn- und Essbereich liegt, ebenso wie im gesamten Bereich der Schlafräume hochwertiger Parkettboden. In Küche, Diele und Gäste-WC wurde zeitloser, weichmacherfreier Designboden verlegt. Das Badezimmer ist in zeitlosem Design gefliest.
Ihre Doppelgarage mit elektrischem Tor in der Tiefgarage des Hauses bietet weiteren Komfort und rundet dieses exklusive Angebot ab.






































